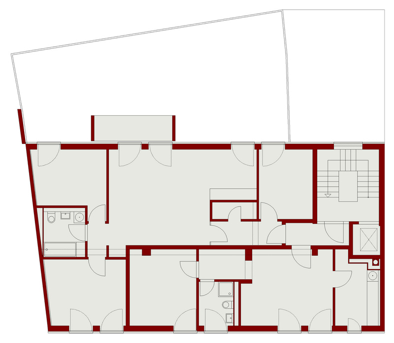
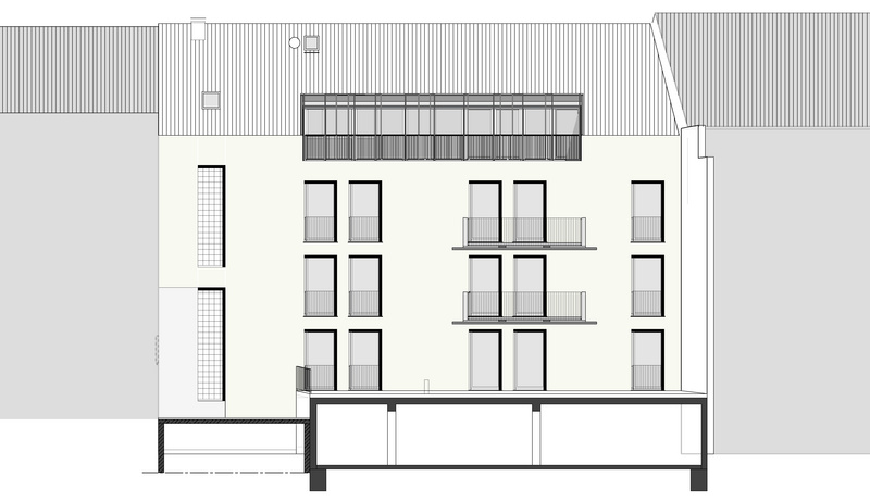
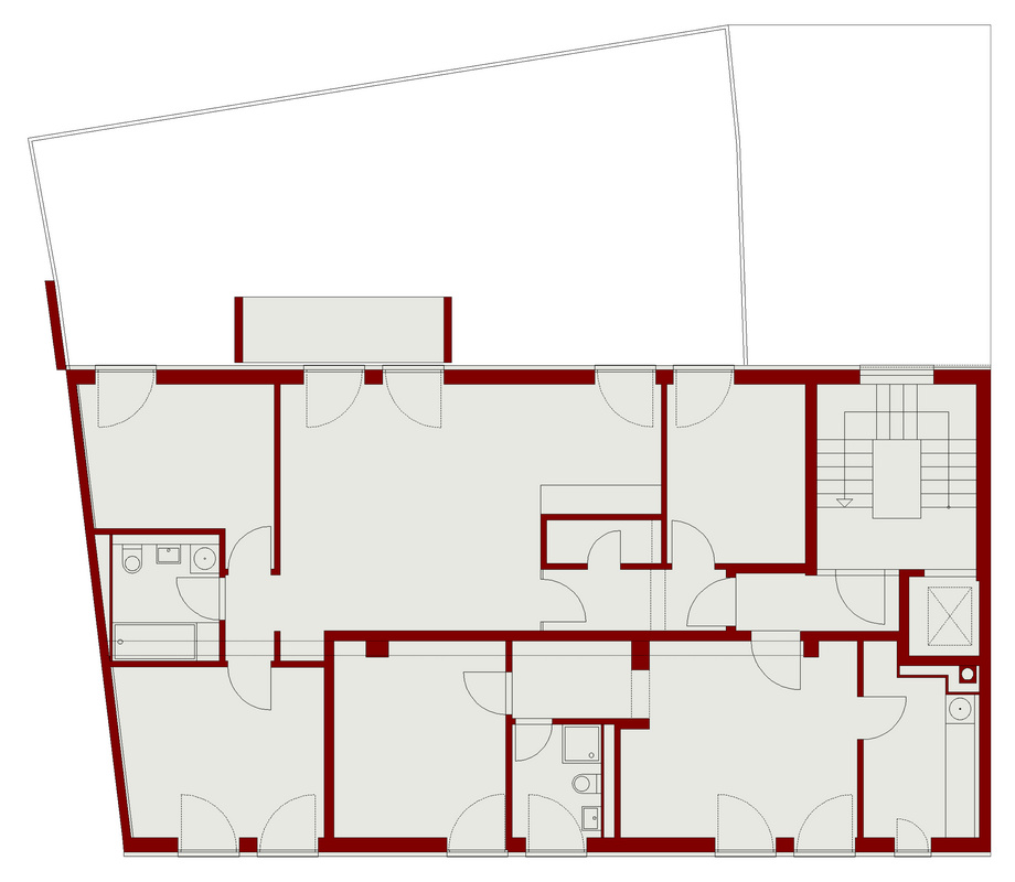
Umbau und Sanierung Bohnesmühlgasse 12 Würzburg

Projekttyp: Sanierung ⎮ Nutzungstyp: Wohnen ⎮ Projektzeitraum: 02/2001 - 09/2002 ⎮ Bearbeitete LPH: 1-8 ⎮ Bausumme: 730.000 € (Netto KG 300-400) ⎮ Honorarzone III ⎮ Auftraggeber: Privat

Würzburg